Parking Lot Project

Raised to date: 700,000

Summary:

In 2023, New Covenant Leadership appointed a team to begin assessing costs and scope of work for needed improvements to sidewalks, entrances, parking, and traffic flow, along with some aesthetic improvements. Work started on the project in Summer 2024.

 

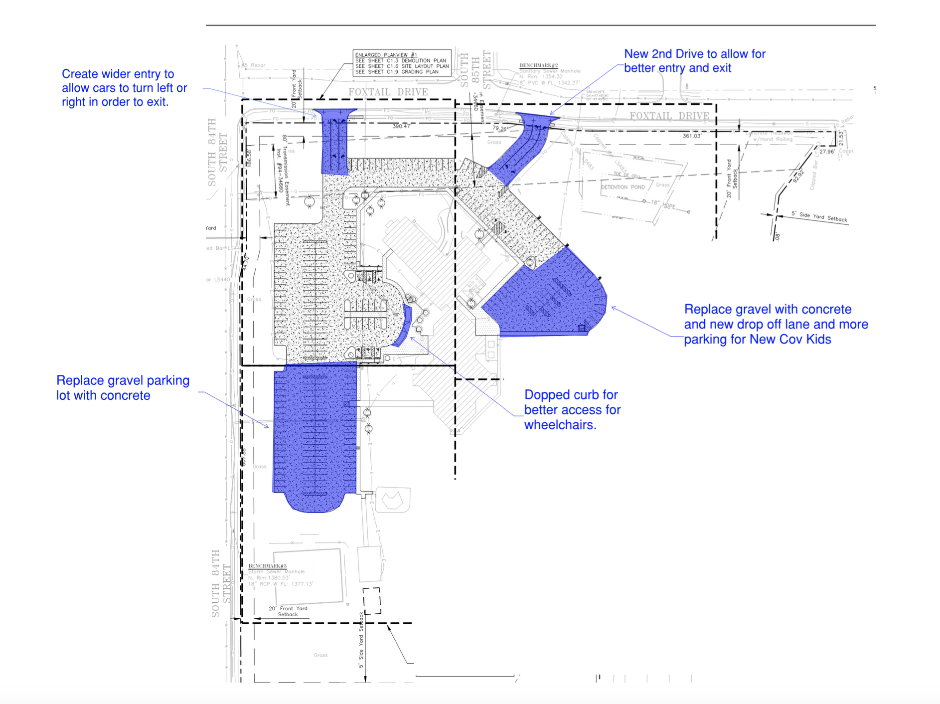
The scope of the project includes the following (also see image below):

  • Replacing all sidewalks, including regrading and improving accessibility of all entrances
  • Repaving the entire parking lot with concrete, including the graveled parking areas
  • Improving traffic flow on lower level for New Cov Kids entrance
  • Addition of a second entry/exit on Foxtail Dr., including widening the existing entry/exit
  • New lighting that covers the entire parking area
  • Landscaping along 84th St. to meet zoning requirements
  • New street and parking lot signage
  • Relocating the existing detached garage
  • New Cov is in the process of receiving bids. The project would be proportioned in stages to minimize disruptions to weekly activities on campus and the restoration and renovation work on the south side.

 

If you have questions email office@newcovchurch.org.

 

Financing the Project:

The Corporate Team advised, with approval from the Governing Board, that New Covenant will provide a total of $400,000 from savings and investment accounts to initially fund the project.

 

Total Projected Cost: $1,100,000
To be initially paid by New Cov: $400,000

Total ask: $700,000

 

While there are financing options for the amount needed to be raised, it is our priority to emerge from both the restoration/renovation and parking lot projects debt free. This will allow us to continue to stay on mission as a generously giving church for the sake of advancing the Gospel both near and far.

 

To pledge funds or donate to this project, please use the buttons at the top of the page.